Centraal gelegen woning met 2 slpk
REF: 6820233
Lijsterstraat 7, 2590 Berlaar
€ 195.000
- 114 m²
- 2
- 90 m²
- 1
Centraal gelegen woning met 2 slaapkamers. Ideaal voor zowel eigen bewoning als investering!
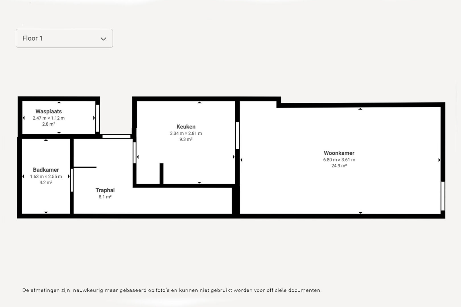
Indeling GLV: gezellige woonkamer; keuken voorzien van zitruimte; sas met zij-deur; badkamer bevat toilet, lavabo en douche.
1V: vaste trap naar de nachthal; berging / dressingruimte; 2 slaapkamers; uittrekbare trap naar de geïsoleerde zolder.
Naast de woning bevindt zich een servitudeweg van 1,10m en toegang naar de buitenberging.
Algemeen:
- CV op gas (ketel van 2024)
- Asbestveilig
- Parkeermogelijkheden in de straat
- Centrale ligging nabij scholen, station, centrum, etc.
Indeling GLV: gezellige woonkamer; keuken voorzien van zitruimte; sas met zij-deur; badkamer bevat toilet, lavabo en douche.
1V: vaste trap naar de nachthal; berging / dressingruimte; 2 slaapkamers; uittrekbare trap naar de geïsoleerde zolder.
Naast de woning bevindt zich een servitudeweg van 1,10m en toegang naar de buitenberging.
Algemeen:
- CV op gas (ketel van 2024)
- Asbestveilig
- Parkeermogelijkheden in de straat
- Centrale ligging nabij scholen, station, centrum, etc.
Bekijk zeker de 360° rondgang via onze website (+ mogelijkheid tot opmeten en ontmeubelen).
Alle attesten zijn beschikbaar onderaan op onze website.
Voor meer info of een bezoek: 0472 22 22 44 of thanee@solittvastgoed.be
Details van het pand
Financieel
- Prijs
- € 195.000
- Beschikbaarheid
- Vanaf akte
- Kadastraal inkomen
- € 411
- Opbrengsteigendom
- nee
Ligging
- Ligging
- Nabij station
- Omgeving school
- ja
- Omgeving openbaar vervoer
- ja
- Omgeving winkels
- ja
- Omgeving sportcentrum
- ja
Comfort
- Rolluiken
- ja
- Aansluiting riolering
- ja
- Aansluiting gas
- ja
- Aansluiting water
- ja
- Kabeltelevisie
- ja
Gebouw
- Bewoonbare opp.
- 114,00 m²
- Constructie
- Halfopen
- Bouwjaar
- 1952
- Structuur
- Bakstenen
- Type dak
- Zadeldak
Terrein
- Perceel opp.
- 90,00 m²
- Tuin
- nee
Energie
- EPC
- 428 kWh/m²
- Dubbel glas
- ja
- Elektriciteitskeuring
- ja, niet conform
- Verwarming
- Gas
- Type verwarming
- Individueel
Technieken
- Elektriciteit
- ja
- Telefoonbekabeling
- ja
Garage
- Garage
- nee
Indeling
- Zolder
- 28 m²
- Terras
- nee
- Keuken
- ja
Stedenbouwkundige informatie
- Bestemming
- Woongebied
- Verkavelingsvergunning
- ja
- Voorkooprecht
- nee
- Vonnissen
- nee
- G-score
- D
- P-score
- D