Instapklare nieuwbouwwoning met tuin en carport
REF: 7309102
Dorpsstraat 1, 2240 Zandhoven
€ 1.450 p/m
- 197 m²
- 3
- 354 m²
- 1
Deze instapklare nieuwbouwwoning combineert hedendaags wooncomfort met een aangename omgeving.
De ruime, lichtrijke woonkamer met open keuken biedt een mooi zicht op de tuin.
De woning beschikt over 3 slaapkamers, waarbij de master bedroom de mogelijkheid heeft om een aansluitende dressing in te richten. De afgewerkte zolderverdieping kan veelzijdig ingevuld worden: als bureel, hobby kamer of een extra slaapkamer.
De ligging is rustig en toch vlot bereikbaar, met winkels en andere voorzieningen in de buurt.
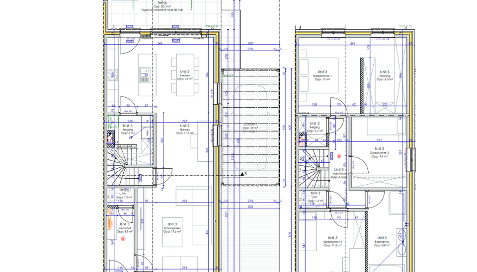
Plannen vindt u terug bij de foto's.
Indeling:
Gelijkvloers: inkom met ingemaakte kast, gastentoilet, ruime woonkamer, open keuken voorzien van de nodige toestellen, berging
Eerste verdieping: 3 slaapkamers, badkamer met inloopdouche, dubbele lavabo en bad, berging
Zolderverdieping: afgewerkte kamer
Buiten: carport en tuin
Algemeen:
- Instapklaar (geschilderd en verlichting voorzien)
- Energiezuinig (Epeil 24). Vloerverwarming, warmtepomp, zonnepanelen.
- Mooie tuin
- Carport
- Onmiddellijk beschikbaar
Wenst u een bezoek? Dit kan uitsluitend aangevraagd worden via de website van Solitt Vastgoed. Surf naar het pand en druk op de knop "bezoek aanvragen”.
De ruime, lichtrijke woonkamer met open keuken biedt een mooi zicht op de tuin.
De woning beschikt over 3 slaapkamers, waarbij de master bedroom de mogelijkheid heeft om een aansluitende dressing in te richten. De afgewerkte zolderverdieping kan veelzijdig ingevuld worden: als bureel, hobby kamer of een extra slaapkamer.
De ligging is rustig en toch vlot bereikbaar, met winkels en andere voorzieningen in de buurt.
Plannen vindt u terug bij de foto's.
Indeling:
Gelijkvloers: inkom met ingemaakte kast, gastentoilet, ruime woonkamer, open keuken voorzien van de nodige toestellen, berging
Eerste verdieping: 3 slaapkamers, badkamer met inloopdouche, dubbele lavabo en bad, berging
Zolderverdieping: afgewerkte kamer
Buiten: carport en tuin
Algemeen:
- Instapklaar (geschilderd en verlichting voorzien)
- Energiezuinig (Epeil 24). Vloerverwarming, warmtepomp, zonnepanelen.
- Mooie tuin
- Carport
- Onmiddellijk beschikbaar
Wenst u een bezoek? Dit kan uitsluitend aangevraagd worden via de website van Solitt Vastgoed. Surf naar het pand en druk op de knop "bezoek aanvragen”.
Details van het pand
Financieel
- Prijs
- € 1.450 per maand
- Beschikbaarheid
- Onmiddellijk
- Huurgarantie - aantal maanden
- 3
- Opbrengsteigendom
- nee
Ligging
- Ligging
- Centraal
- Omgeving school
- ja
- Omgeving openbaar vervoer
- ja
- Omgeving winkels
- ja
Comfort
- Aansluiting riolering
- ja
- Aansluiting water
- ja
- Kabeltelevisie
- ja
Gebouw
- Bewoonbare opp.
- 197,00 m²
- Constructie
- Halfopen
- Bouwjaar
- 2024
- Gevelbreedte
- 6,00 m
Terrein
- Perceel opp.
- 354,00 m²
- Tuin
- ja
Energie
- EPC
- 41 kWh/m²
- Dubbel glas
- ja
- Elektriciteitskeuring
- ja, conform
- Regenwaterput
- ja
Technieken
- Elektriciteit
- ja
- Telefoonbekabeling
- ja
Garage
- Buitenparking
- ja
Indeling
- Slaapkamers
- 3
- Badkamers
- 1
- Toiletten
- 2
- Terras
- ja
Stedenbouwkundige informatie
- G-score
- C
- P-score
- D